23412 Pacific Park Drive #12I

Aliso Viejo, CA 92656

$ 680,000

Price

2

Beds

2

Baths

1,132 Sq. Ft.

$601 / Sq. Ft.

638 Days On Market

Favorite

Share

Canyon Villas Building

Have You Been Pre-Qualified? Start Now

Listing provided by agent Moe Ghazi BRE# 01404175 at Ghazi Capital Group.

Last Updated: 629 days ago

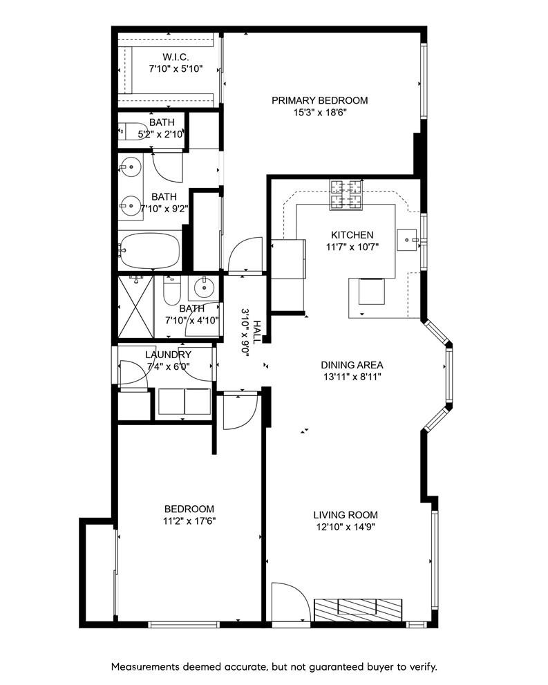
Remodeled designer penthouse situated in the highly sought-after city of Aliso Viejo in Orange County. Upgrades throughout include the "EcoWater" drinking water system, luxury vinyl flooring, designer tile accents, new baseboards, and carpet. A completely remodeled kitchen is a show stopper with quartz countertops, white custom cabinetry with gold handle accents, a large chef sink & faucet, new appliances & feature wall with designer tile & floating shelves. The kitchen, dining, and living room open floor plan is perfect for entertaining with a front patio for additional space for BBQ-ing and dining! The large master bedroom is tranquil, and calming & features 2 large walk-in closets, and a private dual vanity bathroom with a separate water closet. A full-size in-unit laundry room with storage cabinets and a guest bathroom divides the 2 bedrooms providing additional privacy. The secondary bedroom includes another large walk-in closet with lots of storage. In addition, this condo comes with a one-car private garage and an assigned parking spot. A fully equipped fitness center, two community pools, and spas, recent community facelift with new exterior paint, roof, and PEX piping are just a few highlights at Canyon Villas. A short 5-minute walk to the Aliso Viejo Town Center where you can watch a movie in IMAX or shop for all of your grocery, restaurant, gas, and other needs. Centrally located for easy commuting with the 73 Toll Road connecting to all major freeways as well as the SNA airport. Aliso Viejo offers lots of parks and recreation, some of the best hiking and bike trails, and top-ranked schools.

Show More
Property Type Condominium
Year Built 1990
MLS # SR24022732
Listing Type Closed
Heating Central
Cooling Central Air
Pool Association, Community, In Ground
Laundry Dryer Included, Inside, Washer Hookup, Washer Included
Parking Assigned, Garage
Gated Community Yes

Payment Calculator

40% Complete (success)
80% Complete (danger)
20% Complete
80% Complete (danger)
60% Complete (warning)
Principal and Interest
Property Taxes
Homeowners' Insurance
HOA Dues
Mortgage Insurance
Image Calculator Icon Customize Calculations | Compare Mortgage Rates

Property Details for: 23412 Pacific Park Drive #12I

Interior Features

Bathroom Information
  • 2 full baths
Laundry Information
  • Dryer Included
  • Inside
  • Washer Hookup
  • Washer Included
Fireplace Information
  • Living Room
Heating & Cooling
  • Central Air
  • Central

Parking / Garage, Multi-Unit Information, Location Details

Parking Information
  • Assigned
  • Garage
Community Features
  • Units in Complex (Total) 344

Exterior Features

Pool & Spa Information
  • Association
  • Community
  • In Ground
  • Association
  • Community
  • In Ground
Building Information
  • Total Floors: 3

Property / Lot Details

Property Features
  • Canyon
Lot Information
Property Information
  • Attached
  • Tax Parcel Number: 93151314

Recently Sold Homes Near 23412 Pacific Park Drive #12I

Nearby Businesses

  • Grocery Stores
  • Drug Stores
  • Coffee Shops
  • Restaurants
  • Health & Medical
  • Fitness & Activity
  • Arts & Entertainment
  • Nightlife & Bars
    Browse all businesses in Aliso Viejo, CA, 92656

    Tour This Condo

    SATURDAY

    20

    DEC

    SUNDAY

    21

    DEC

    MONDAY

    22

    DEC

    TUESDAY

    23

    DEC

    WEDNESDAY

    24

    DEC

    THURSDAY

    25

    DEC

    FRIDAY

    26

    DEC

    Schedule A Tour
    Ryan Case, Licensed Realtor & Team Lead

    Ryan Case

    Licensed Realtor & Team Lead

    949-570-4445 Contact Ryan Case
    Listing provided by agent Moe Ghazi BRE# 01404175 at Ghazi Capital Group.

    Last Updated: 629 days ago

    Similar Condos For Sale

    For Sale

    $ 559,900

    1 beds, 1 baths, 762 sq.ft.

    23412 Pacific Park #15A ...
    View All 47 Condos